Haus 2  -3  Zimmer Wohnungen  Erd Luft Wärmepumpe-Fußbodenheizung Neueste Heiztechnik  GEG 2023 und Photovoltaik

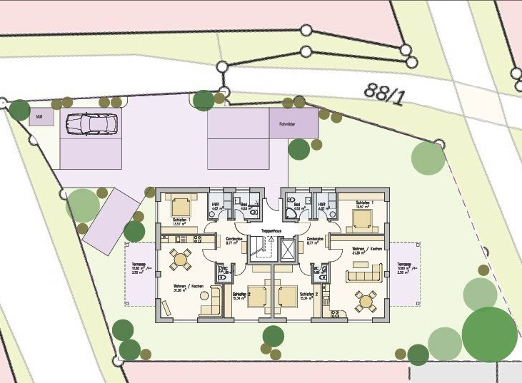
GRUNDRISSE WOHNUNGEN Haus2 - Zimmer 3

ERDGESCHOSS

2.OBERGESCHOSS

Copyright - 2011